Novoferm Stahlzarge 1-tlg für Trockenbau-Ständerwände zum Wandbegleitendem Einbau.... mehr
PRODUKTBESCHREIBUNG
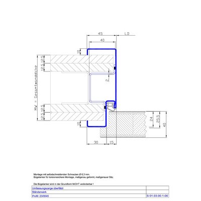
Novoferm Stahlzarge 1-tlg für Trockenbau-Ständerwände zum Wandbegleitendem Einbau.
  • Links-/Rechts verwendbar
  • 4 Stück Bandtaschen V8610
  • vorgestanzte Schließlöcher
  • Bodeneinstand: ohne
  • Drückerhöhe 1050mm ab OFF
  • inkl. grauer NTK-Dichtung
  • Profil: 23/1645
  • Maulweitenkante: 16 mm
TECHNISCHE DATEN
Farbe: lichtgrau
Breite (mm): 875
Höhe (mm): 2125
Wandstärke (mm): 125
DIN Richtung: DIN links/rechts
Anzahl Flügel: 1 flg.
Material Zargen: Stahl
Artikelart: Ständerwandzarge
Hersteller: Novoferm

Novoferm MW 125 Ständerwandzarge UZG 875x2125mm

  • Artikel-Nr.: 5020240067
  • EAN: 4014998160055
312,97 € *
(312,97 € / STÜCK)

inkl. MwSt. zzgl. Versandkosten

Lieferzeit 4-6 Werktage

Menge:
Mindestabnahme:
1 EINHEIT
EINHEIT
Gebindeinheiten:
1 EINHEIT = 1 STÜCK
VE 1 STÜCK
Zuletzt angesehen

Newsletter

News zu Angeboten, Events, unserem Unternehmen und Tipps & Tricks